唐山路南区文化路与南新道交口东北将要开发
唐山信息港 发表于:2022-5-13 19:27 复制链接 看图 发表新帖
阅读数:3544
路南区人民政府最新公示
1e4e75fc5f7d734571d9d8407a1ab821.png
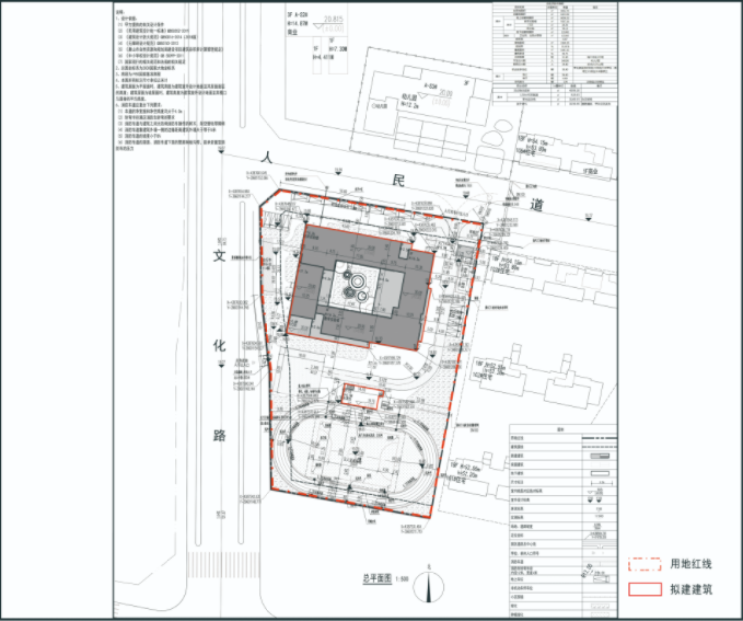
文化路南延段以东、南新道以北A-03地块项目批前公示
c63f82dd09be350be362133d29d5e97c.png

建设单位名称:唐山万瑞房地产开发有限公司

建设项目名称:文化路南延段以东,南新道以北A-03地块项目

建设项目位置:文化路南延段以东、南新道以北

建设规模:总建筑面积 6151.92㎡,地上建筑面积6036.52㎡,地下建筑面积115.4㎡

建设层数:4层

建设高度:17.7米

公示期:2022年5月13日至2022年5月22日

路南区将新建一所学校
53fc813f4237d936103d9ab19aa9628e.png
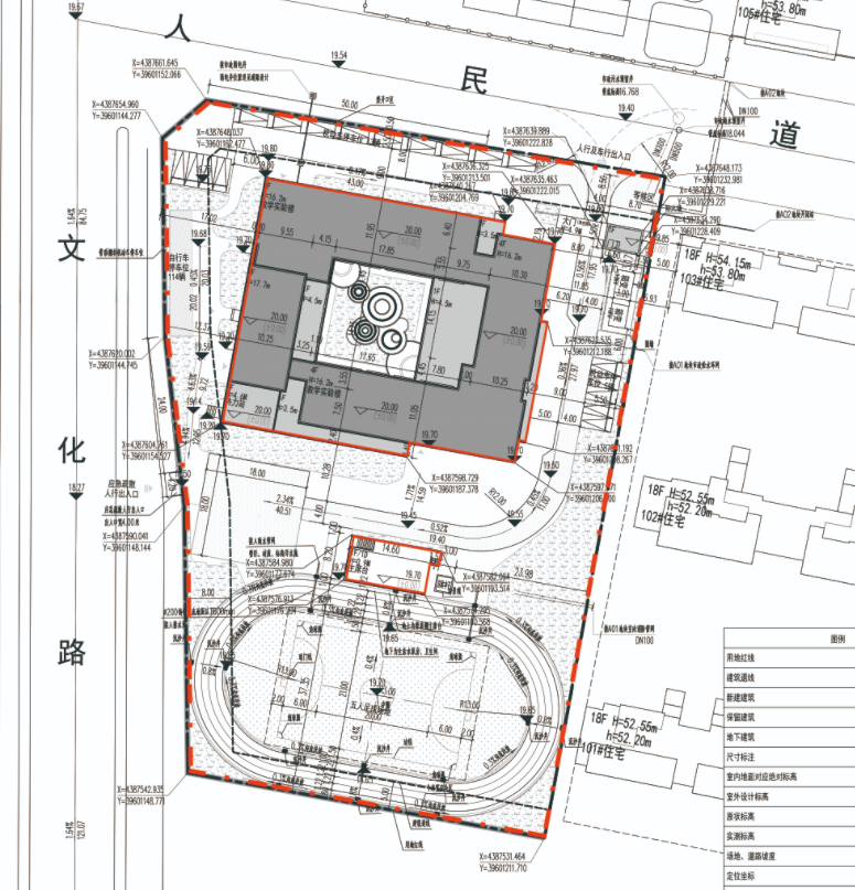
       建设单位名称:唐山万瑞房地产开发有限公司
       建设项目名称:文化路南延段以东、南新道以北A-03地块项目
       建设项目位置:文化路南延段以东、南新道以北
       建设规模:总面积6151.92㎡,地上建筑面积6036.52㎡,地下建筑面积115.4㎡;建设层数4层,建筑高度17.7米
809d77fb3417bbfa5ac94eedd860e4e3.png
7686ce2d0dd3aff5858b2dbb503c2d8c.png
返回列表 使用道具 举报
条评论
您需要登录后才可以回帖 登录 | 立即注册
相关推荐
©2001-2021 唐山信息港 http://www.tsxxg.com冀ICP备2026004523号
首页联系我们客服微信:14369595Comsenz Inc.