丰润区人民政府发布多则征地公告
唐山信息港 发表于:2023-5-7 12:49 复制链接 看图 发表新帖
阅读数:8799
丰润区人民政府发布多则征地公告
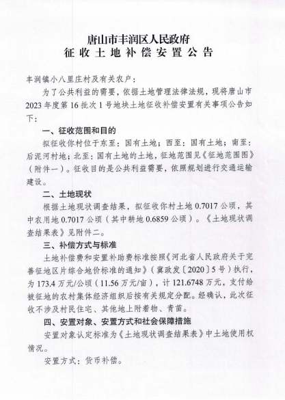
丰润镇小八里庄
55235eba8b9d27a0dcdd518f37c67478.png
07782ea7f65fe599e2fb92e4d912c73b.png
00d892afb7ef1d6c60b605cb168f029d.png
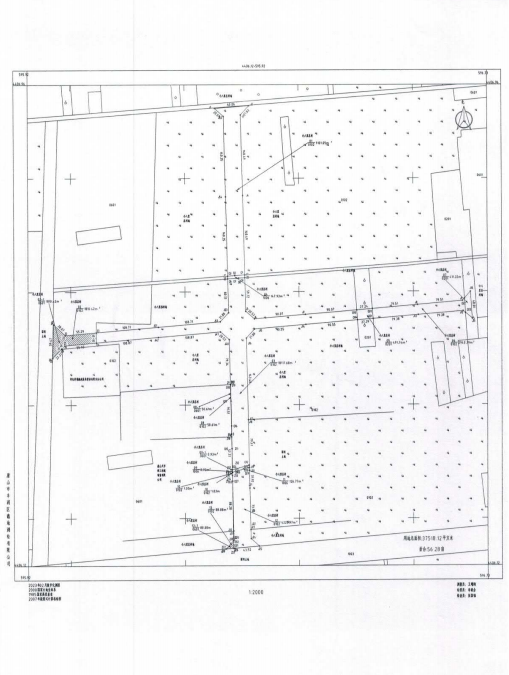
丰润镇小八里庄
171bffa0cf89ebda10b8bc16bcd06e29.png
d00116e7672a33ed447221bb4d8b2e1b.png
4b54782934dd8264c5ebd9fe43bb51e9.png
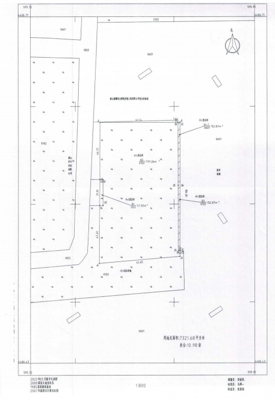
丰润镇小八里庄
d7c99b436d1e0e00cb30353688eeb698.png
32a9d8c7f5ccabe2f36427805801b477.png
4bb03946d840cd7fffd12711bad89b56.png
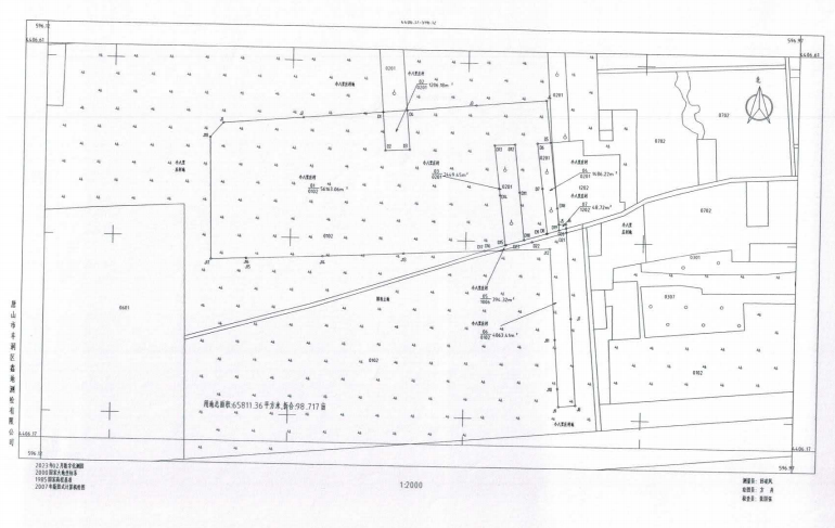
丰润镇东那母庄村
d652136c102b8c207c544f29b6fb3656.png
70f54fff9f020317106a03cf5bdf0489.png
f11109b61c03ac551934b77398a1e94a.png
丰润镇小八里庄村
2074f82eedbf6ea25839752d35f74d63.png
ece8ceea9b322237477c2da7486e692a.png
e871ac078f69bc406bff6217919d5fba.png
任各庄镇后泥河村
f494cb589ce8c48e9ae4e305573a54bb.png
491362f208db586400ce904bde23c607.png
a35281425cb227ba31002c2dccb65529.png
丰润镇小八里庄村
c7e1e4386d7ed3769fd68309a46e1125.png
97628ca35c742fb1c8eef7f08a69c7e1.png
efa6a365bc051536c0507b61390fe5cf.png
来源:丰润区人民政府
返回列表 使用道具 举报
条评论
您需要登录后才可以回帖 登录 | 立即注册
相关推荐
©2001-2021 唐山信息港 http://www.tsxxg.com冀ICP备2026004523号
首页联系我们客服微信:14369595Comsenz Inc.