唐山路北区发布唐山市边各寨保障性住房项目
唐山信息港 发表于:2024-6-19 23:33 复制链接 看图 发表新帖
阅读数:3961
唐山市路北区人民政府官网
发布唐山市边各寨保障性住房项目
(限价商品房)A06楼建设工程信息
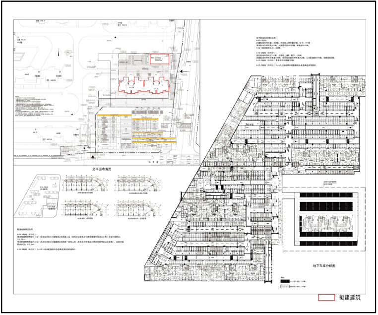
2e72df87d327cacf5a2f39f6f33c3543.png
12d64b36321d21bb0247af2951cf930b.png
2055cb6b0f0b4d7d55bb233ee29dbe20.png
返回列表 使用道具 举报
条评论
您需要登录后才可以回帖 登录 | 立即注册
相关推荐
©2001-2021 唐山信息港 http://www.tsxxg.com冀ICP备2026004523号
首页联系我们客服微信:14369595Comsenz Inc.