唐山路南区发布文旅南湖后街A-01地块项目公示
唐山信息港 发表于:2024-6-28 23:01 复制链接 看图 发表新帖
阅读数:6315
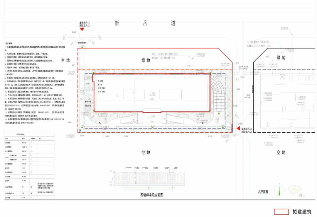
6月28日路南区人民政府官网公示文旅南湖后街A-01地块项目
2d40a04afe3d16fe7218aa0663b5efd5.png
b6ce19d84bced318b6f7e96e4f33f29a.png
c473883c632d6fc398db612dca6c7ab7.png
854ba8f57e78543428cb0d1179c2381a.png

来源:路南区人民政府
返回列表 使用道具 举报
条评论
您需要登录后才可以回帖 登录 | 立即注册
相关推荐
©2001-2021 唐山信息港 http://www.tsxxg.com冀ICP备2026004523号
首页联系我们客服微信:14369595Comsenz Inc.