唐山老花卉市场将建天泽苑小区
唐山信息港 发表于:2025-4-21 23:05 复制链接 看图 发表新帖
阅读数:4901
唐山市自然资源和规划局(林业局)
发布建筑项目规划公示
(天泽苑项目)
8b2e9dcfa88149af1d0875060d2ffb61.png
087101112213646d87ad014d19be083b.png
21bbc64c89a723f8fdda9b128fcbad52.png
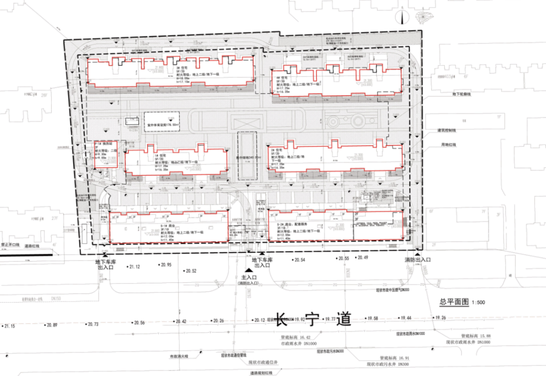
建设项目名称:天泽苑项目
建设项目位置:唐山市路北区长宁道33号
建设规模:总建筑面积39634.98㎡,地上建筑面积22477.7㎡,地下建筑面积17157.28㎡
建设层数:5层
建设高度:18米
5f63d3429a841757f17324b6e4406677.png
返回列表 使用道具 举报
条评论
您需要登录后才可以回帖 登录 | 立即注册
相关推荐
©2001-2021 唐山信息港 http://www.tsxxg.com冀ICP备2026004523号
首页联系我们客服微信:14369595Comsenz Inc.