唐山市体育中心将新建气膜运动馆!
唐山信息港 发表于:2025-5-17 22:48 复制链接 看图 发表新帖
阅读数:7918
3322c0adc8799879015bf547b09ebd12.png
0858c92df805feaf010b22d6a58c5d7c.png
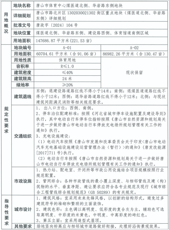
地块名称:唐山市体育中心煤医道北侧、华岩路东侧地块
详细规划:唐山市路北片区1302030021302街区重点地块(煤医道北侧、华岩路东侧)详细规划
地块位置:煤医道北侧、华岩路东侧、建设路西侧、体育馆道南侧区域
用地面积:147686.87平方米(221.53 亩)
e7cd827de1321fe9de4bf8897ea17bc3.png
2fc61e7d9b2b491d686158ebfaad1ff8.png
用地性质:体育用地
建筑层数:1层
建设规模:总建筑面积23319.49㎡,其中现状建筑面积19806.88㎡,拟新建3512.61㎡
建筑高度:18米(拟建最高)
容积率:0.384
4591754f45240506735b0c06274f8ee9.png
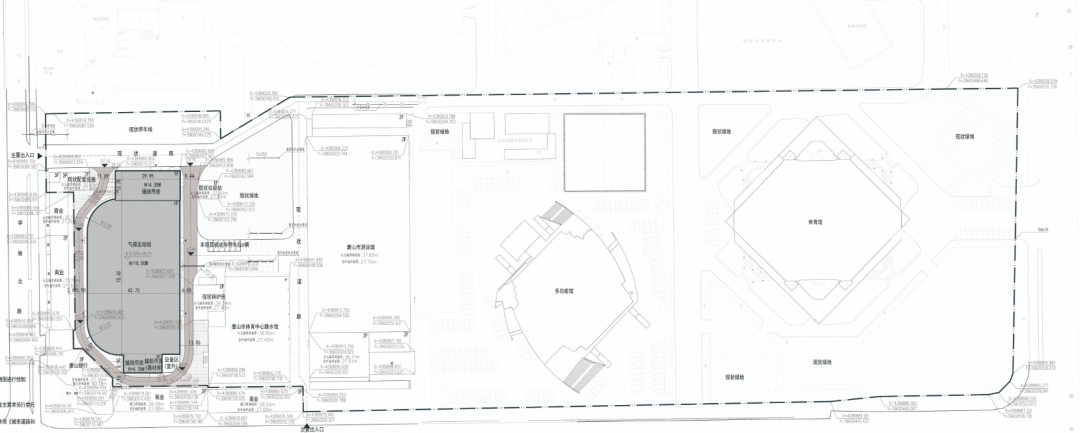
新建项目建筑面积明细表
总建筑面积:3512. 61㎡
气膜运动馆:建筑面积2943. 88㎡,占地面积2943. 88㎡,计容面积2943. 88㎡
辅助用房:建筑面积568.73㎡,占地面积568.73㎡,计容面积568.73㎡
72f18443c766493d97365b02b16725ba.png
87401e7a2d28d844ee7ab3ef2ac80c1d.png
9ac51b7197382bbde9ec6d40a14f6239.png
01db92ecfe674bbe3c2234edb499c834.png
416b6ef2776b798cf1249b548f1ef6a2.png
来源:唐山市自然资源和规划局
返回列表 使用道具 举报
条评论
您需要登录后才可以回帖 登录 | 立即注册
相关推荐
©2001-2021 唐山信息港 http://www.tsxxg.com冀ICP备2026004523号
首页联系我们客服微信:14369595Comsenz Inc.