路北区将新建一小区:天和悦府
唐山信息港 发表于:2026-3-22 22:35 复制链接 看图 发表新帖
阅读数:8497
唐山自然规划局发布规划公示
路北区将新建一小区——天和悦府(一期)(二期)
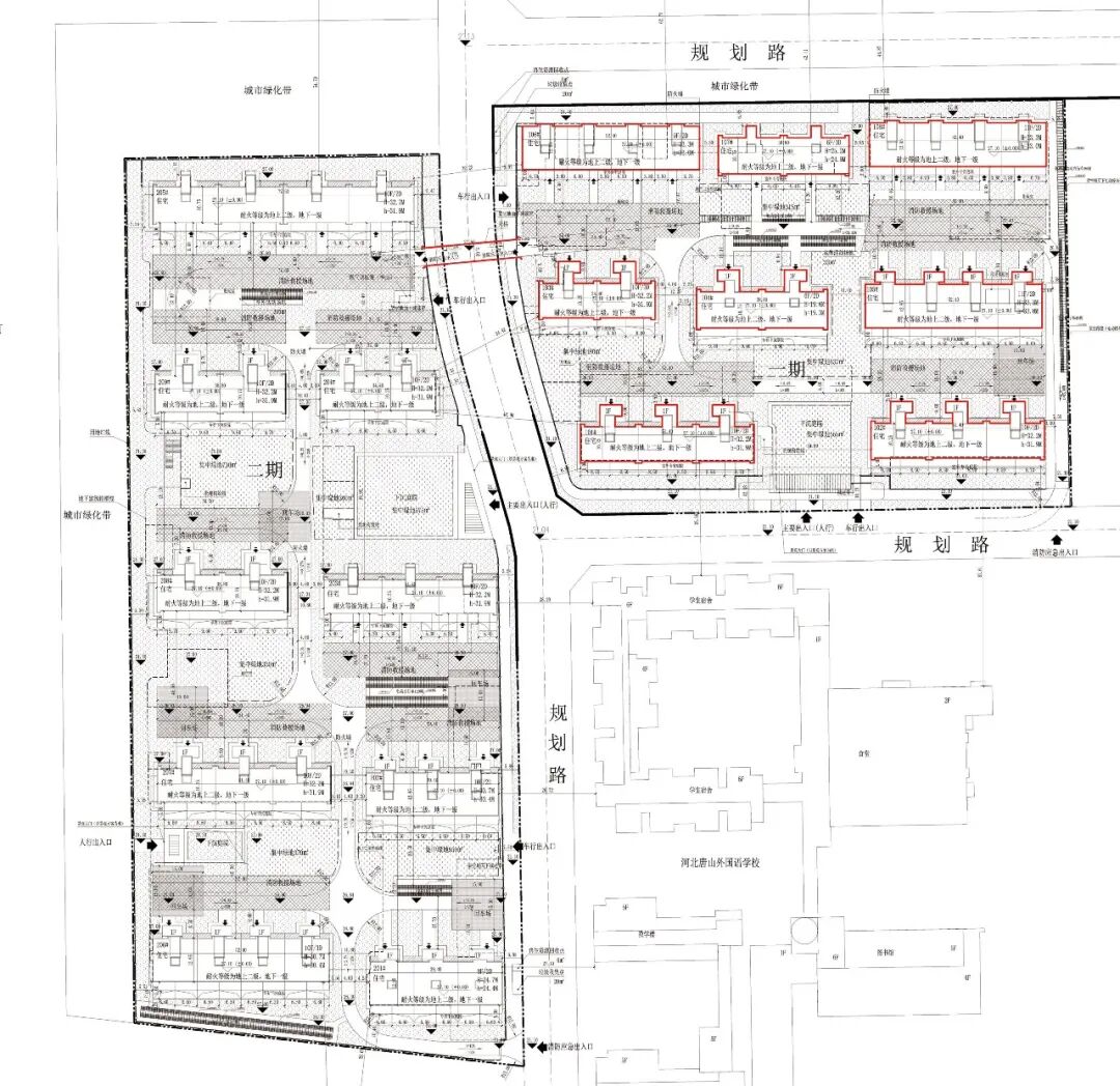
天和悦府(一期)
f1888f03b456fcd9d51dc1a69e51889f.png
建设项目名称:天和悦府(一期)
建设项目位置:路北区北新道以北、站前路以东、龙源路以西
建设规模:总建筑面积59740.69㎡;地上建筑面积38152.76㎡;地下建筑面积21587.93㎡
建设层数:11层
建设高度:33.3米
1aca0e83c7bfe850f015adaed3aea32f.jpg
58003cd6216d98f4ce60c63750bae6f0.jpg
fddc0b2981b5b6776070a9f4fdfa9b3a.jpg
ee6cd5d8e7ad877b1f8bcf47cdfca1f4.jpg
83fed5b30d0b0b0778cbc14a05fba467.jpg
59a668d3ac8e10ce4be3b48c6266df9a.jpg
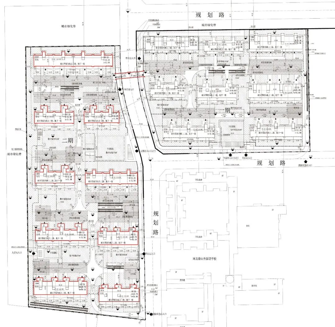
天和悦府(二期)
e71ec253aa89d40edaa080c1c6790985.png
建设项目名称:天和悦府(二期)
建设项目位置:路北区北新道以北、站前路以东、龙源路以西
建设规模:总建筑面积73074.04㎡;地上建筑面积44925.53㎡;地下建筑面积28145.51㎡
建设层数:10层
建设高度:32.2米
85267784b93500111a934d5aebfbddeb.jpg
bb58a911521760186f011e5c61ec83b2.jpg
5a9e8985f845d68f6eeb2a3e3388bd8f.jpg
e8fc7c2090e47e97c67aaa62693400b6.jpg
a22778c29bd7e72c653f590f3c93c1b3.jpg
来源:唐山市自然资源规划局
ffc7a56cc10c64aa1de978db3a01b587.gif
返回列表 使用道具 举报
条评论
您需要登录后才可以回帖 登录 | 立即注册
相关推荐
©2001-2021 唐山信息港 http://www.tsxxg.com冀ICP备2026004523号
首页联系我们客服微信:14369595Comsenz Inc.